建物+土地 詳細 小諸市大久保 [H26-001]
ログハウス[ 弊社施工 ]
小諸市にあるイトーピ別荘地内、南東部の高台にあります 弊社が新築時から担当させて頂き、定期メンテナンスのご依頼も頂いているログハウスです 手入れが行き届いていますので、即ご入居いただけます 土地: 対象の土地は「母屋の建つ土地」+「南側の山林」、この2筆です 母屋のログハウス建築後、陽当り及び景観向上の為、南側の山林を追加購入したという経緯です その南側の山林は、松種は伐採され、ナラ等を植林し整備されています 「南側の山林(遊び場)が付いているログハウス」です(それぞれの敷地間には狭い道があります) 建物: ●母屋 : 集成角ログ 幅116mm (フィンランド製) 屋根は銅板葺き(永久に錆びません) 薪ストーブ付き(アメリカ製) エアコン付き 合併浄化槽による水洗化 ●別棟 :(おまけ) 離れ : 6角形の趣味小屋 施主様のご要望で弊社が設計・施工した物です BBQハウス : ミニログ 施主様がご自身で組立られました ピザ窯付 建物は母屋及び別棟2棟です 弊社お勧めの物件です
>
- 所在地
- 長野県 小諸市大久保
- 価格
- 2900万円
- 建物
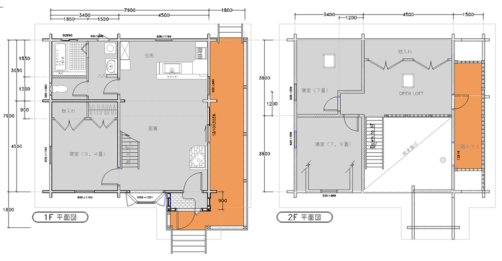
- ログハウス 3LDK+オープンロフト 平成11年(1999年)
- 床面積
- 1F: 60.04m2(18.19坪) 2F: 42.94m2(13.01坪) 合計: 102.98m2(31.2坪)
- 土地(①母屋側)
- 752.99㎡(228.2坪)
- 地目
- 山林 所有権
- 土地(②南側)
- 1,239m2(375.5坪) / ①+②=合計 1991.99m2 (603.7坪)
- 地目
- 山林 所有権
- 上水
- 小諸市水道
- 下水
- 合併浄化槽による水洗
- 取引形態
- 専任媒介
- 法令上の制限
- 都市計画内 無指定 建蔽率60%・容積率100%
物件情報が必要な方はPDF形式でダウンロードできます
ご検討用資料・銀行さんの融資相談などにご使用下さい
別な画面で開きます

